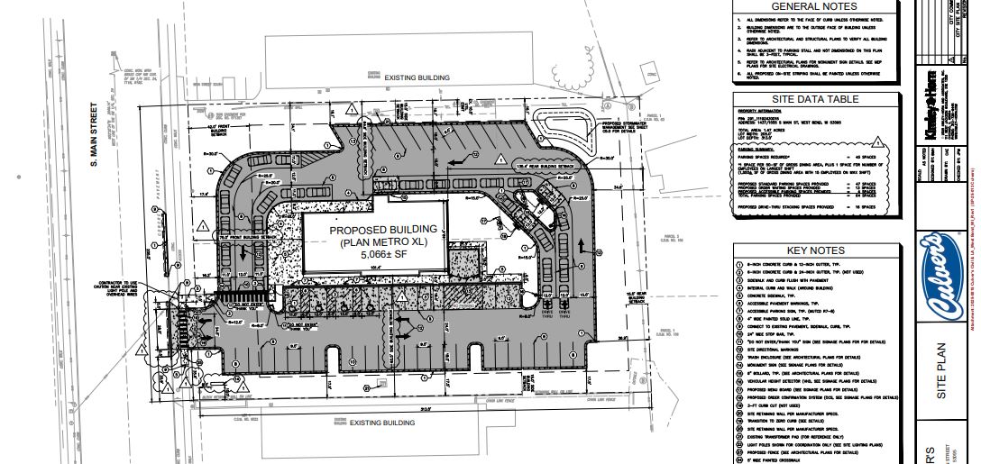
August 28, 2025 – West Bend, WI – Another Culver’s is coming to West Bend, WI. The plan commission will meet Tuesday, September 2, 2025, to review plans for the business at

1437 and 1505 S. Main Street. The site is currently home to Omicron Restaurant and Visionworks. The 1.47-acres combines the two parcels; the new Culver’s will be 5,066 square feet.

Plans call for razing the two existing buildings at 1437 and 1505 S. Main Street.


The plan commission meeting begins at 6 p.m. on Tuesday, September 2 in the council chambers at City Hall, 1115 S. Main Street. The meeting is free and open to the public.








So is Omicron moving or closing? If they are closing, that would be awful news. They are a community staple! My son is home on leave from the Marines and that is one of his “must have” stops while he is home. So sad.
They are not moving
Who’s the owner of the new culvers?
So far in agenda the only listing is Chris McGuire, McCon Building Corporation
Jeffery Leigel, S&L Properties, West Bend Main St, LLC
Culver’s is awesome and yummy.
But here’s the deal, folks:
We have plenty of Culver’s in Washington County. We do not need another.
Instead, West Bend should open its arms to a Chick-fil-A.
As a restaurant chain that honors our Lord and Savior Jesus Christ, Chick-fil-A’s values align well with the values of our community.
Let’s make it happen!
With Jumbos right across the street? Culver’s pulled the same dick move in Hartford by building right next to Dairy Queen. DQ closed a month later. Why would the plan commission approve this???