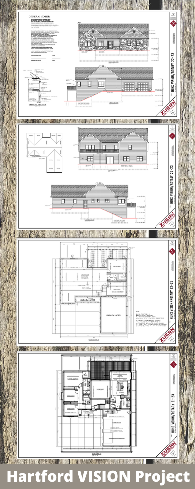
Hartford, WI – After a five-year hiatus, students from Hartford High School are working to grow their skills in the builder trades and design and build a new home at 1447 Red Oak Drive in the City of Hartford, WI.

Instructor Mark Murphy said the goal is to teach students the total aspect of building a home from designing to budgeting expenses, acquiring a loan, using skills to help with the build, selecting fixtures, landscaping and finally selling the home.
Click HERE to SUBSCRIBE to FREE local news at
Washington County Insider on YouTube
Construction is underway as excavation and foundation have been completed.

A groundbreaking will be held at 1:15 p.m. on Thursday, September 1, 2022, at the construction in the Red Oak Estates.
The project is part of Hartford VISION homes; it will be the 24th home the Hartford Rotary Foundation Inc. [501(c)(3)] and the Hartford Union High School have collaborated to build.
The goal is to have enough profit from the sale of the home to pay off the mortgage (covered by the Hartford Rotary Foundation Inc. up until the sale) and to purchase a new residential lot for the 2023-24 Hartford VISION home project.







