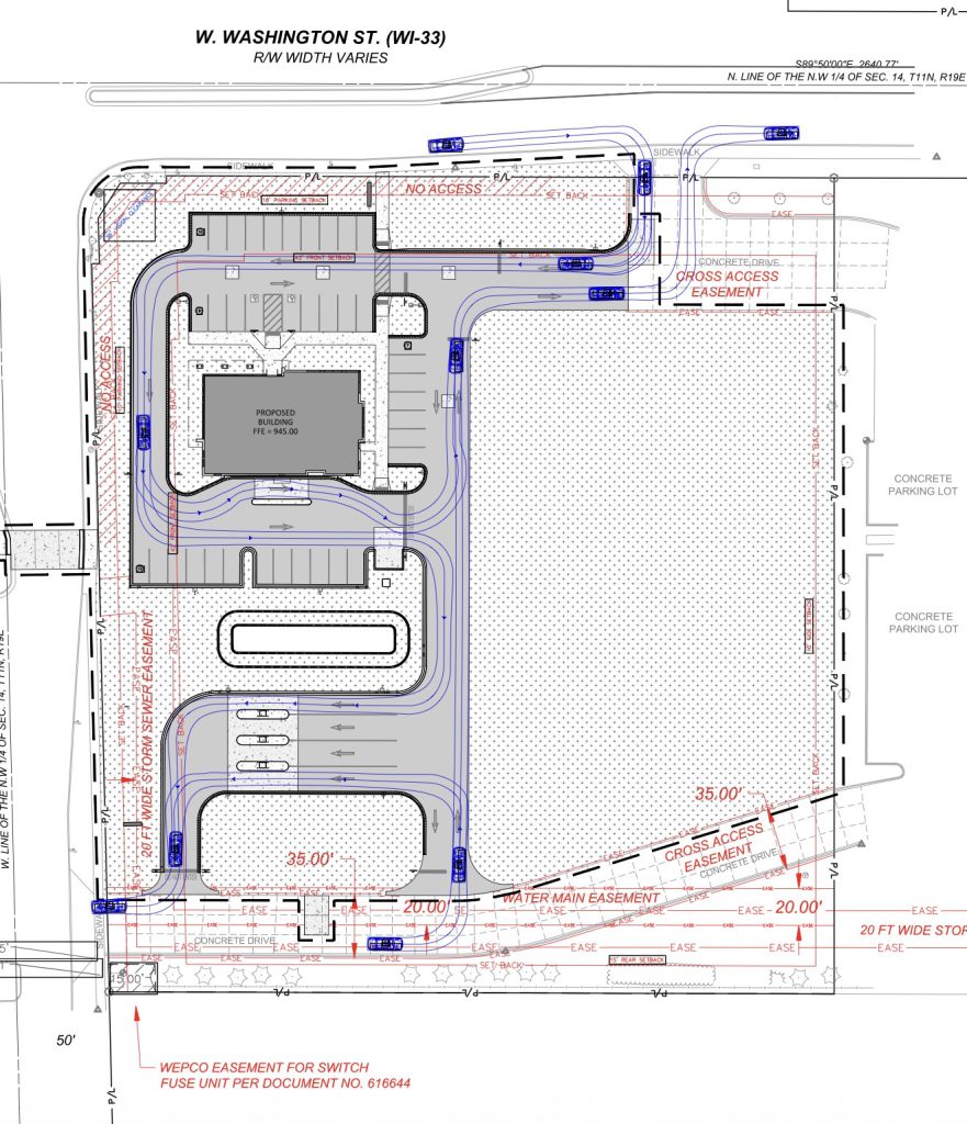
West Bend, Wi – The West Bend Plan Commission will review a development proposal at its March 3, 2026, meeting regarding the possible construction of a 4,792-square-foot building at the southeast corner of 18th Avenue and W. Washington Street in West Bend, WI.

A Kohler Credit Union is being proposed. Currently operating as a satellite store inside Meijer in West Bend, Wi, the development would include a stand-alone building with three drive-through lanes.

According to the Plan Commission agenda, there will be a review of “a technical memorandum to compare the trip generation of the original land uses as analyzed in the Kwik Trip Traffic Impact Analysis, dated September 11, 2029, and the updated credit union and assumed restaurant land uses.


Below is a portion of the Plan Commission packet. There was no defined ‘fast food restaurant’ listed in the development plans.




The Plan Commission meeting begins at 6 p.m. and is held in the council chambers at City Hall, 1115 S. Main Street, in West Bend, WI. The meeting is free and open to the public.
Also on the agenda is a public hearing for a conditional use permit for a make-up and tattoo establishment on S. Main Street.
On a history note: The lot to the east of 18th Avenue was previously home to Fleet Farm. That gas station was razed in July 2020.
Followed by the demolition of the building. Later, the underground tanks were removed.
-Also in September 2020 the little Tri-Par gas station on Highway 33 met its fate. Neighbors remember the gas station as “the spot” to pick up cases of Kingbury Beer for $5.50. In years past the spot was home to Little John’s Hamburger Hut.

- It was July 2023 when WashingtonCountyInsider.com posted a story about CBRE looking to develop the lot just east of 18th Avenue and next to Kwik Trip No. 5. Below is a portion of that article.
There are rumors of a Popeyes franchise and/or Chick-fil-A. So far, sources have nothing to confirm.
Click HERE to SUBSCRIBE to FREE local news at
Washington County Insider on YouTubeThe closest Popeyes is on Good Hope Road just south of Menomonee Falls with another outlet on Burleigh Road in Wauwatosa.
Chick-fil-A already has a presence near Washington County with an outlet on County Line Road in Menomonee Falls.
Sources have confirmed Chick-fil-A has been sniffing around the West Bend area … but so far, there’s nothing to crow about.

The CBRE design does show a Scooter’s Coffee in Lot No. 3, but according to a spokesperson that is just a concept plan at this point. (… but we’ll keep an eye on it.)
The other two buildings are also deemed simply “a concept plan.”
Scooter’s Coffee definitely is moving into the Washington County, Wi area; a store opened in Hartford, WI on May 16, 2023. New stores are also planned for Onalaska, Holmen, Beloit, Paddock Lake, Mt Pleasant, Janesville, West Milwaukee, New Berlin and Fond du Lac.

The lot on Highway 33 and 18th Avenue is reportedly listed for around $3.1 million. Early indications are there are a lot of ‘issues’ with the site which neighbors could well tell you about all the underground springs in the area.
Construction costs and site costs are also affecting a lot of local developments.












