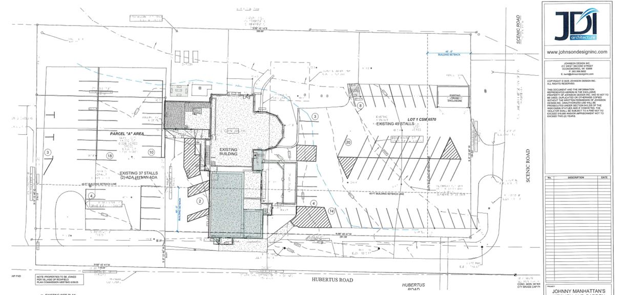
October 2, 2025 – Hubertus, WI – The October 2 plan commission meeting in Richfield, Wi, will take action on a site plan regarding a proposed expansion of Johnny Manhattans Italian Steakhouse, 3718 Hubertus Road.

Owner Nancy Manhattan is behind the effort to add a kitchen and garden room. Plans show the kitchen addition at 3639-square feet and the garden room at 1,599 square feet.
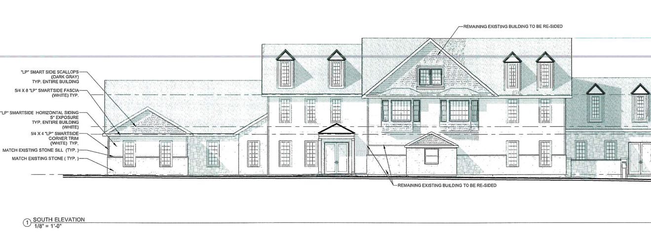
One notable addition will be the installation of LP Smartside siding to the exterior, replacing the vinyl siding.


The fine dining restaurant has been in business 26 years. The oldest part of the building was constructed in 1906.Â
Thursday’s plan commission meeting is held at the Richfield Village Hall, 4128 Hubertus Road. The meeting begins at 7 p.m. and is open to the public. Click HERE for the full agenda.








